Storhytter liegt bei Trysilfjell Hytteområde.
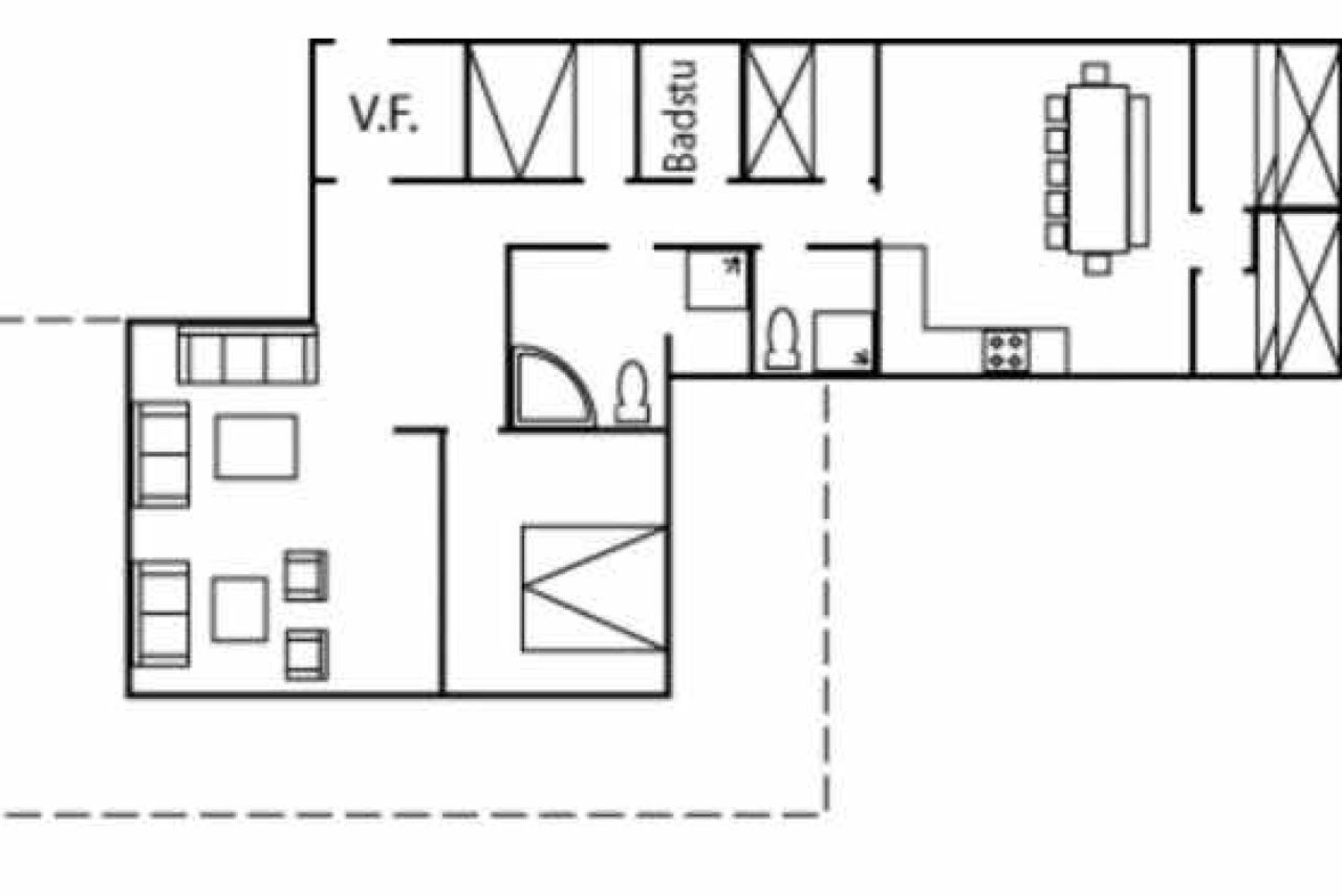
Ferienhaus, 9+3 Gästebetten, 139 m2, Wohnzimmer mit integrierter Küche, 5 Schlafzimmer, 2 Duschen, 2 WC, 1 Sauna, Whirlpool.
Schlafzimmer 1= 1 Doppelbett, 180 cm breit. Schlafzimmer 2= 1 Einzelbett 120 cm breit. Schlafzimmer 3= 1 Etagenbett, bei dem das untere Bett 130 cm breit ist. Schlafzimmer 4= 1 Etagenbett, bei dem das untere Bett 130 cm breit ist. Schlafzimmer 5= 1 Etagenbett.
Badezimmer 1: mit Dusche, WC und Sauna. Badezimmer 2: mit Dusche, WC und Whirlpool.
das Gerät hat: Spülmaschine, Mikrowellenherd, Kühlschrank, Gefrierschrank.
Wohnzimmer mit TV, Kamin.
in Wohnung:Trockenmöglichkeiten (Heizung im Schrank) .
Entfernung: Abhängig von den Schneebedingungen kann die Entfernung zu den Liften/Abfahrten variieren.Transportweg 20 Meter, Skilift 1300 Meter, Nordische Skilaufloipen 550 Meter.
Haustiere und Rauchen sind nicht erlaubt.


